Добрый день, коллеги
Недавно переехал, и занимаюсь обустройством домашней студии. Сегодня наконецто установил мониторы, пошумел, прогнал синусоиду и обнаружил два достаточно мощных резонанса: на 90 гц и достаточно узкий на 132 гц.
Посоветуйте пожалуйста, как правильнее всего начинать с ними борьбу? Ситуация немного осложняется несимметричной формой помещения, а также достаточно ограниченными возможностями по перемещению рабочего места.
Сам мыслю так: сначала басовые ловушки в углы смежные с фронтальной стеной, после этого, перемерив АЧХ с помощью RTA-мика, сооружать НКЧП на фронтальную стену (непонятно пока только, сколько их и на какие частоты надо будет настраивать).
Заранее благодарен
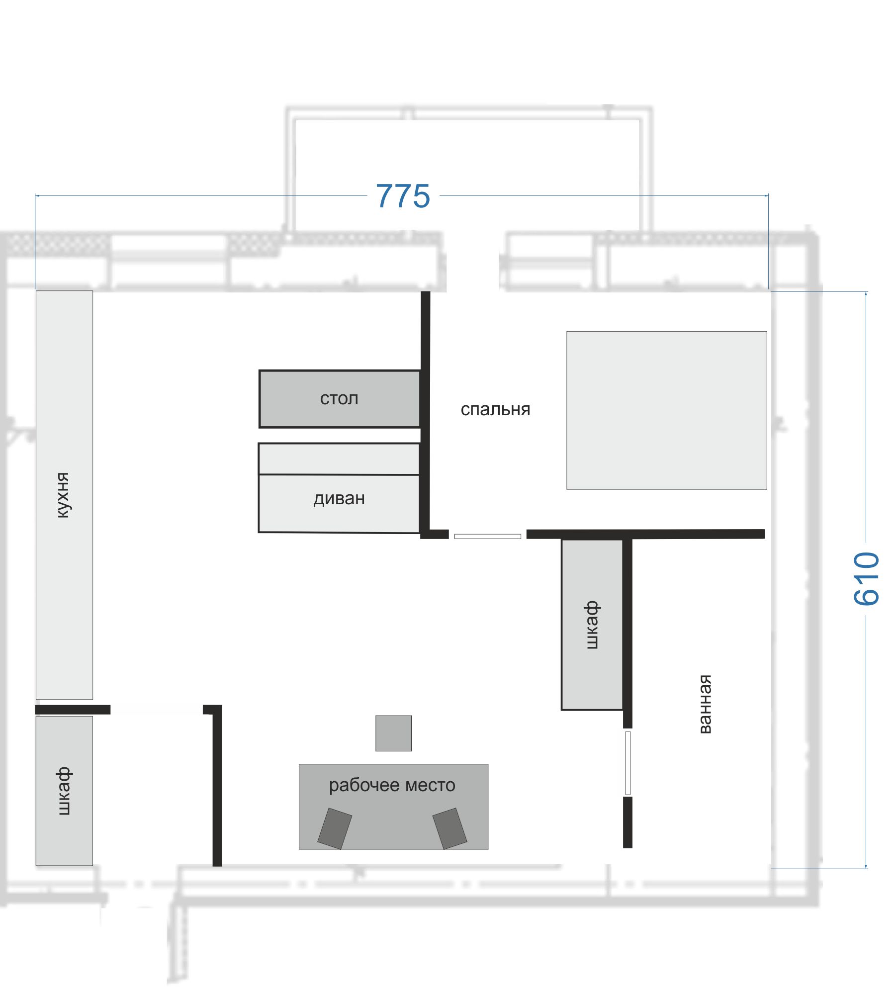
Недавно переехал, и занимаюсь обустройством домашней студии. Сегодня наконецто установил мониторы, пошумел, прогнал синусоиду и обнаружил два достаточно мощных резонанса: на 90 гц и достаточно узкий на 132 гц.
Посоветуйте пожалуйста, как правильнее всего начинать с ними борьбу? Ситуация немного осложняется несимметричной формой помещения, а также достаточно ограниченными возможностями по перемещению рабочего места.
Сам мыслю так: сначала басовые ловушки в углы смежные с фронтальной стеной, после этого, перемерив АЧХ с помощью RTA-мика, сооружать НКЧП на фронтальную стену (непонятно пока только, сколько их и на какие частоты надо будет настраивать).
Заранее благодарен
