Акустические панели (1 онлайн

@solo541, А если спандбондом а потом мешковиной? И кстати, Вы рекомендовали именно Акустик Кнауф, почему? Я посмотрел, у него почти в 2 раза меньше плотность против того же рокувула... И цена ниже.
А мешковиной просто как-то прилично выглядит. Не совсем конечно дурацкой, конечно. У нас на студии угол был заполнен так, и сверху была мешковина, как финишный слой. Мне нравилось.
 
Последнее редактирование:
@solo541, А если спандбондом а потом мешковиной? И кстати, Вы рекомендовали именно Акустик Кнауф, почему? Я посмотрел, у него почти в 2 раза меньше плотность против того же рокувула... И цена ниже.
Можно спандбондом а потом мешковиной. Я рекомендовал Акустик Кнауф, потому что:
он дешевле роквула, стекловолокно меньше пылит чем базальт, при разной объемной плотности, удельное сопротивление потоку, если например сравнивать роквул 45кг/м3 и Ursa 18-22 кг/м3, практически одинаково, примерно 11,3-11,6 (Па.с/м 2). У меня нет ак.испытаний, по удельному сопротивлении потоку для Акустик Кнауф и я могу лишь предполагать, что он будет примерно 8000 (Па.с/м 2).
https://www.jochenschulz.me/en/blog/rockwool-glasswool-hemp-best-absorber-material
Если вы нацелены на толщину панели 10 см, применяйте роквул, если 15 и толще, Акустик Кнауф.
 
Можно спандбондом а потом мешковиной. Я рекомендовал Акустик Кнауф, потому что:
он дешевле роквула, стекловолокно меньше пылит чем базальт, при разной объемной плотности, удельное сопротивление потоку, если например сравнивать роквул 45кг/м3 и Ursa 18-22 кг/м3, практически одинаково, примерно 11,3-11,6 (Па.с/м 2). У меня нет ак.испытаний, по удельному сопротивлении потоку для Акустик Кнауф и я могу лишь предполагать, что он будет примерно 8000 (Па.с/м 2).
https://www.jochenschulz.me/en/blog/rockwool-glasswool-hemp-best-absorber-material
Если вы нацелены на толщину панели 10 см, применяйте роквул, если 15 и толще, Акустик Кнауф.
Здравствуйте! А что думаете на счет данного материала ? https://g-b-t.ru/product/akoterm-flaks-lnyanoy-uteplitel
Если сравнивать его с Акустик Кнауф например, ну и вообще с разной минватой.
Тут плотность 30кг/м3, но по экологичности как по мне лучше: 85% Лён и 15% полиэфирное волокно (полиэстер, лавсан) которое вроде безвредно.
Данный материал 10см толщиной, если обмотать в спанбонд и повесить ? Допустим если нужно, то сделать второй слой что бы было 20см.

Это их кофф. поглощения по документам.
Протокол-испытаний-по-шумопоглощению-стр2.jpg
Как думаете на сколько близко это к реальности? просто для меня экологичность стоит в первую очередь, так как в этой комнате я нахожусь 24/7, поэтому в принципе если при 10/20см будет такой кофф. поглощения как по документам, то меня устроит. Мб я конечно тут чего-то не понимаю, тогда поправьте меня.
p.s. делать комнату в комнате, все завешивать панелями и т.д. у меня нет возможности, так как квартира не своя.
Хотел сделать по минимуму, первичные отражения справа-слева, два угла за мониторами и может быть потолок над головой, сзади ставить нет возможности ничего, так как там по факту кухня, как бы это странно не звучало.
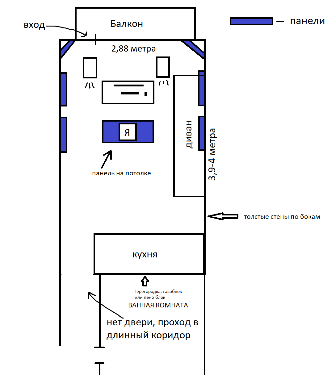
Само помещение:
213055
забыл добавить, высота до потолка 2,75 метра

И мои последние измерения:
213057

Как считаете, насколько поможет моя задумка с вот такими исходными данными?

p.s. спад на графике в низких частотах я думаю это особенность микрофона, снимал не с измерительного, а с Rode M3.
 
Последнее редактирование:
p.s. спад на графике в низких частотах я думаю это особенность микрофона, снимал не с измерительного, а с Rode M3.

Зачем вы им мерили? Такой спад на нижних.
Rode-M3-fc.jpg

И на графике у вас предел затухания - 1745 мс. Поставьте хотя бы 400. Нагляднее будет.
Почитайте здесь тему про REW и перемеряйте хотя бы недорогим капсюлем Panasonic WM-61, точнее будет.
загружено.png

Чего так ваты боитесь? Аллергик? Берите не каменную вату, которая сыпется, а минвату с длинными волокнами и заверните в три слоя, чтоб наверняка. Люди в каркасниках из ваты живут и ничего. Мебель из ДСП не боитесь?)))
 
минвату с длинными волокнами

простите, что вмешиваюсь, вы вообще о чём?
И почему вы решили, что она безвредная.

Люди в каркасниках из ваты живут

Лично я от ваты кашлять начинаю.. сразу.
А вообщее есть млюди котоые и шыряются.. и чё ?
 
простите, что вмешиваюсь, вы вообще о чём?
И почему вы решили, что она безвредная.

Лично я от ваты кашлять начинаю.. сразу.
А вообщее есть млюди котоые и шыряются.. и чё ?

1. Что значит о чем? Вам трудно понять смысл фразы "длинные волокна" или что? Минеральная вата (как и любой материал) имеет множество разновидностей: стекловата, шлаковата, каменная/базальтовая вата и пр. Да еще и техпроцессы разнятся у производителей. Все они имеют разную толщину и длину волокон. Также они имеют различную упругость, прочность и прочие характеристики даже при одинаковой плотности. Вследствие этого и пылят они по разному. Кроме того я советовал завернуть 3 раза, чтоб наверняка.

2. На ваш странный вопрос о безвредности отвечу, когда покажите ссылку, где я такое написал. Абсолютно безвредных веществ не бывает, наверное. Кислород, который позволяет вам жить, может же легко вас и прикончить. Некоторые вещества могут быть одновременно и лекарством, и ядом, и все зависит от дозировки. В строительстве для материалов существуют нормативы и технологические карты их применения. Для обеспечения безопасности жизнедеятельности человека существуют нормы ПДК. Вот если соблюдать стандарты и правила, то прекрасно можно жить и с ватой, и пенополистеролом, и шифером, и шлакоблоком/шлакобетоном и мебелью из ДСП и т.д.
Цементная пыль также вредна, но я не вижу страхов по поводу использования штукатурок на его основе. Наверное потому что они скрыты краской, обоями и пр.

3. А я от ваты не кашляю даже если буду стоять на складе с ней. И что? Вам могу посоветовать не дышать через вату, не лупить по ней палкой, когда она не прикрыта паро/гидроизоляцией и использовать средства индивидуальной защиты (читай, респираторы).
Некоторые люди чихают и кашляют от пылевых клещей, от кошек и собак, от амброзии и тем не менее как то существуют в этом мире.

4. Я не знаю как связаны наркотики (оказывающие влияние на сознание человека, большинство из которых запрещены к свободному обороту) и строительный материал, соответствующий принятым нормам и правилам, и используемый десятки лет в миллионах квадратных метров помещений, поэтому отвечать на ваше категорично-риторическое "И чё?" не буду))))

В остальном, надеюсь, я достаточно подробно ответил на Ваш вопрос?
 
  • Like
Реакции: Umbrella161
Зачем вы им мерили? Такой спад на нижних.
Посмотреть вложение 213073

И на графике у вас предел затухания - 1745 мс. Поставьте хотя бы 400. Нагляднее будет.
Почитайте здесь тему про REW и перемеряйте хотя бы недорогим капсюлем Panasonic WM-61, точнее будет.
Посмотреть вложение 213074

Чего так ваты боитесь? Аллергик? Берите не каменную вату, которая сыпется, а минвату с длинными волокнами и заверните в три слоя, чтоб наверняка. Люди в каркасниках из ваты живут и ничего. Мебель из ДСП не боитесь?)))
спад красным цветом. А какая разница? ну будут все эти пики просто громче, но все равно какие именно пики торчат и на какой частоте я то вижу.

ну тут даже спорить не буду, люди и курят и пьют и ничего не боятся и на востоке России напротив заводов живут и все им пофигу, тут если вы выбрали такую позицию то пожелаю вам только удачи, а я всё это по другому вижу.
 
Просто у людей много маркетинговой шелухи в головах и много "своего мнения", которое на поверку оказывается вложенным им через рекламу, ТВ и интернет. Это я сейчас даже не о вашем вопросе, а вообще. Маркетологи правят бал и в индустрии звукозаписи, и в производстве авто, и в строительстве, и, наверное, везде)))) Никто не берется глубоко проверять достоверность "фактов", искать какие то сертификаты, исследования и пр.

Что для вас лично экологичность? Из ваших вопросов явственно следует, что это безопасность для вашего личного здоровья.
Вот, например, пакетики одноразовые из условной "Пятерочки" , да и вообще пластик в квартире непосредственно влияют на ваше здоровье? Нет. Значит, они экологичны? Проблема загрязнения пластиком одна из наиболее опасных для окружающей среды. К чему я привел такой пример?
Да к тому что Вы и производитель вкладываете в понятие экологичность разные вещи. И отсутствие вреда здоровью это далеко не первейшее, что подразумевает производитель.

Как в "Мимино": "Я тебе один умный вещь скажу, только ты не обижайся.."

Для натуральных утеплителей экологичность это, прежде всего: Возобновляемость ресурсов и Количество выбросов при переработке
Здесь учитывается упаковка, утилизация или повторное использование.
Т.е. производитель исходит из глобальной характеристики, а Вы из частной.
При этом есть такой показатель - энергозатраты при переработке сырья . Здесь "лен" обходит стекловату, но проигрывает "каменной". То есть в глобальном смысле - по экологичности "камень" может быть лучше "льна", но при этом пылить он будет для Вас больше.

Экологичность льна еще и в его биоразлагаемости. Т.к. натур продукт. Но даже в Европе натуральный утеплитель может содержать до 15-20 процентов синтетики. Но любой плюс имеет минус - сам лен, и его связующее в утеплителе (например, крахмал) - это среда для микроорганизмов, поэтому производитель вынужден добавлять в состав антибактериальные добавки и вещества против микроорганизмов.
Вам мало антибиотиков в жизни? Нате, получите еще))))
А негорючесть "льна" путем добавления в него борных антипиренов добавляет экологичности или нет?

Написал это все, потому что не в первый раз встречаю на данном форуме упоминание утеплителей на натуральной основе (и в частности на основе льна) как некоей панацеи для любителей экологичности. При этом под экологичностью здесь понимают минимум пыли. Качественный "льняной" утеплитель плохо режется и практически не пылит. Но по старой традиции нашей страны - чем больше ее появляется в рознице, тем почему то она лучше начинает пылить и легко рвется руками.
Мелкодисперсная пыль вредна, хоть натуральная, хоть ненатуральная. Об этом вам скажут работники деревообрабатывающей промышленности, которые не сильно радуются древесной пыли.

Вот и в ссылке, которую вы привели есть типичные маркетологические завлекашки и недоговорки. Так что, все как у всех.
 
Tu22m3, добавлю, плюс не адекватная цена за утеплитель из льна, по сравнению со стекловатой.
 
Вы по-моему меня не услышали, на разницу в цене мне все равно.

Tu22m3, Спрошу напрямую, частицы утеплителя из льна являются канцерогенами? как это например в минвате,стекловате итд.
И второй вопрос, как вы определите вдыхаете ли вы эти частицы прямо сейчас или нет находясь в домашней студии 24/7 где все панели обложены минватой, что будет через 3-5 лет просидев в таком помещении по 15-18 часов? или вы реально думаете, что если вы закрыли ее какой то пленкой, тканью и всё можно спать спокойной? Мы же никогда не узнаем этого, так зачем рисковать? если можно не рисковать? Совершенно не понимаю, вы мне затираете про маркетинг, но так усердно отстаиваете эту минвату.
Для меня экологичность в данном моменте, это канцерогены именно в этом конкретном товаре (утеплители) и всё, просто сократил что бы было понятно о чем речь, но вы не поняли. Про то где больше вреда и где меньше и пластиковые пакетики вы можете мне не рассказывать, я прекрасно это знаю. Тут вопрос в другом в минимизации рисков, понимаете? может быть лён тоже чем то вреден. Но по крайне мере он не будет повышать риски развития онкологии, а если это так, то о чем вообще может идти разговор?

Вообще я спрашивал про эффективность утеплителя из льна, но так никто ответа и не дал. Только пустая болтовня о том зачем бояться минваты...
 
Последнее редактирование:
  • Like
Реакции: MajesticChaos и sunsell
@a320, ну ведь пояснили же более чем ясно, что пыль (искуственная, натуральная, любая) сама по себе опасна, если её вдыхать долго, много и часто (силикоз легких, выше об этом говорилось как раз). И про канцерогены сказали вроде. Тут еще не так однозначно, что опаснее, "каменная труха" со всем сопутствующим или то, что содержится во "льне". Из двух зол я бы выбрал три слоя спанбонда :)

И отвечая прямо на ваш вопрос о минимизации рисков, вот в каком ключе необходимо рассуждать. Объективным критерием будет замер концентрации взвеси частиц в воздухе в комнате, отделаной мин.ватой (любой, но однообразной на один эксперимент) с одним определенным способом ее упаковки, и последующее сравнение с нормами для жилых помещений и рез-тами таких же экспериментов с другими материалами. Исходя из того, что эта ветка в принципе существует, довольно очевидно, что никто таких экспериментов (и я очень хорошо понимаю, почему) не ставил, а потому объективного ответа вы не получите.
 
Вам указал на неточность ваших измерений. Вы отмахнулись - мол пики станут больше и всего то. Хотя на этом форуме говорят, что кроме АЧХ у микрофонов есть еще другие характеристики (направленность, чувствительность и пр.), вроде иногда влияющие на измерения. Но врут наверное. Пустая болтовня. Ладно по микрофону и измерениям вы все решили.

По вате я писал не столько для вас, сколько для всех, читающих форум. Чтобы у них была более полная картина, а не только "идеальная" от производителя.
Существует такое понятие, как воздухообмен жилого помещения, который происходит всегда, если это не барокамера (и ту иногда открывают). Даже не представляю, что нужно делать с ватой, чтобы хотя бы приблизиться к нормам ПДК. Тем более когда в комнате вешаются 6 звуковых панелей, в которых будет от силы пол куба утеплителя.

Ну а после ваших слов про канцерогены я на 99 процентов уверен, что вы начитались страшилок про формальдегид. Так у меня для вас есть 2 новости: хорошая и плохая. Плохая - что он содержится вокруг вас в стольких вещах, что вы даже и не подумаете. Хорошая - что в РФ требования по формальдегиду жестче, чем в Европе.
Ну и исследования ВОЗ по нему вы наверняка не видели, а ведь там есть и риски, и концентрации, и рекомендации.
Кстати, онкологи, пишут, что в возникновении рака виноваты: 10 процентов - генетика, 5 процентов - экология, 85 процентов - образ жизни, активность, питание, вредные привычки. Ну то такое - пустая болтовня. Смешно будет, если вы курите и боитесь ваты)))

А вот вам "Резюме ВОЗ по качеству воздуха в помещениях: избранные загрязняющие вещества." По формальдегиду там главное - последний абзац. Почитайте перед сном, там даже про нафталин есть)))

На ваш второй вопрос отвечаю: для измерения концентрации формальдегида в жилых помещениях используются специальные приборы - газоанализаторы, можете даже себе прикупить, сразу после измерительного микрофона. Или найдите ближайшую лабораторию, которая окажет вам такую услугу. А если спросят, почему у вас опасения по превышению формальдегида, то скажите, что проклятые капиталисты суют его в вату, а также в лакокрасочные материалы, мебель из ДСП и МДФ, в табачный дым, изделия из пластмассы, автомобильные выхлопные газы и т.д. При вашей тревожности можно еще запастись счетчиком Гейгера.

"... что будет через 3-5 лет просидев в таком помещении по 15-18 часов?" - именно из-за ваты ничего не будет. Скорее больше повлияют заказчики, которые мотают нервы на тему "сочините мне произведение на уровне Моцарта с передачей всех авторских прав за 5 тысяч рублей". Тем более ваша комната не будет набита ватой, а будет слегка прикрыта в местах первичных отражений.

"...Мы же никогда не узнаем этого ..," - если ничего не хотеть узнавать, то никогда и не узнаешь. Это касается любой отрасли и сферы жизни.

"..но так усердно отстаиваете эту минвату." - только в контексте данной темы на РММ. Если завтра мне кто то скажет, что минвата по всем параметрам лучше пенополистирола (не в контексте акустических свойств), я отвечу: "Борис, ты не прав! Всему свое место." Я, кстати, совсем не против льняных утеплителей, как вам кажется. Я даже вам скажу, что при вашем объеме даже на цену можно не смотреть. Нервы дороже.

"..я спрашивал про эффективность утеплителя из льна" - у вас по ссылке есть характеристики: Плотность 30, группа горючести - Г4 (очень горючие). Прочность на сжатие отсутствует. Удельное сопротивление потоку воздуха производитель не указывает. Но вот, например Льняные маты МАГРИПОЛ имеют удельное сопротивление потоку воздуха (КПахс)/м³ = 12,5 при той же плотности.
Протоколы испытаний шумопоглощения там есть, вы сами также ссылки на них вставляли. График от 100 до 4000 Гц. Чем ниже частота, тем хуже поглощение. По критерию цена-эффективность до минваты все равно не дотянет.
Натурных испытаний здесь никто не проводил, поэтому подтвердить заявленные характеристики или опровергнуть вряд ли смогут.
Думаю, что даже 10-20 процентов разницы для вас погоды не сделают.

А пустая болтовня - она, прежде всего в пустых головах. Неважно говоришь ты при этом или слушаешь.

П.С. Когда будете выбирать мониторы, рекомендую слушать их на Ютубе. Например, на канале "Давай запишем". Там душевные ведущие, душевные комментарии, а не такие язвы, как здесь)))
 

Вложения

ообще я спрашивал про эффективность утеплителя из льна, но так никто ответа и не дал. Только пустая болтовня о том зачем бояться минваты...
Если вас устраиваю плиты из льна, несмотря на группу горючести Г4 и цену, применяйте. Только делайте их толщиной минимум 15 см и 5 см тнос. По поводу коэффициентов звукопоглощения, прежде чем на них смотреть, посмотрите в каких условиях условиях проводились испытания. Прикрепляю первый лист протокола испытаний.
213120


Я сомневаюсь что у вас комната 220 м3 и вы сделаете панели толщиной 10 см и отступом 200 мм.
Так что эти коэффициенты мало вам помогут. А какую частоту они будут поглощать, можно моделировать http://www.acousticmodelling.com/multi.php
 
Последнее редактирование:
  • Like
Реакции: Tu22m3
Кстати, онкологи, пишут, что в возникновении рака виноваты: 10 процентов - генетика, 5 процентов - экология, 85 процентов - образ жизни, активность, питание, вредные привычки. Ну то такое - пустая болтовня. Смешно будет, если вы курите и боитесь ваты)))
вот вы меня не знаете , а такое пишите...
Еслиб я курил, пил, ел бы всё подряд упаси господи из пятерочки/магнита и им подобным, то я бы вообще не задумывался бы о вреде минваты и завтра же повесил бы ее голой на стены без каких либо вопросов.
В целом я вас услышал. Но вы так и не поняли мою позицию.
Моя позиция очень проста, если я знаю о чем то, что причиняет какой либо вред здоровью, я стараюсь это минимизировать в своей жизни, насколько это возможно и на сколько это в моей власти. То о чем я не знаю к сожалению пока не под моим контролем, до тех пора пока эти знания я не получу. Вы мне еще расскажите, что у меня за стенкой жилого дома минваты тонны, а я дурак такой пишу тут про ее вред...
У вас такая странная позиция, раз я беспокоюсь о своём здоровье, то точно недалёкий, рекламы и страшилок насмотрелся и еще приписываете мне тонну глупостей в добавок. Дальше я полагаю напишете мне, что я наверно верю в распыление короновируса с самолетов, а тут минваты какой то боюсь...
Я изучаю данный вопрос, поэтому и спрашиваю и кстати дозиметр у меня дома имеется и совсем не понимаю что смешного в этом.

На счет горючести Г4 что вы имеете ввиду? что материал сильно горючий? а какие в этом могут быть риски?

Кстати на счет Магрипола, почему то нигде не нашел его в продаже в рф, первые две страницы поиска, везде либо в архиве либо нет в наличии. С чем это может быть связано?
 
Последнее редактирование:
  • Like
Реакции: sunsell
По поводу коэффициентов звукопоглощения, прежде чем на них смотреть, посмотрите в каких условиях условиях проводились испытания. Прикрепляю первый лист протокола испытаний.
Спасибо, что- то такое и хотел увидеть, в идеале конечно если бы были люди кто тестировал их в своих домашних условиях и поделился бы опытом.

панели толщиной 10 см и отступом 200 мм.
ну 10см толщина с отступом в 20см еще вполне реально сделать в моих условиях.
Буду иметь ввиду
 
a320, делайте их толщиной минимум 15 см и 5 см тнос. но на НЧ ниже 150 Гц это сильно не повлияет. Обрабатывать обязательно, все вертикальный углы, углы по периметру потолок- стены, площадки ранних
отражений, включая потолок.
Спасибо, что- то такое и хотел увидеть, в идеале конечно если бы были люди кто тестировал их в своих домашних условиях и поделился бы опытом.
Тестировать не обязательно. Какую частоту они будут примерно поглощать, можно увидеть и моделировать тут http://www.acousticmodelling.com/multi.php. в графу Flow resistivity (Pa.s/m2) поставьте
12500 Pa.s/m2. Хорошим звукопоглощение считается коэффициент - 0,7
 
Последнее редактирование:
  • Like
Реакции: a320
На счет горючести Г4 что вы имеете ввиду? что материал сильно горючий? а какие в этом могут быть риски?
Учитывая стоимость материала, который вы хотите применить, можно вместо него применить холлофайбер Акустик 2500. Часть такого материал входит в состав льняных плит, который вы хотите купить. Добавлю, холлофайбер плавится, но при этом не выделяет гари, копоти, едкого дыма, а полиэстеровая основа коксуется. Близки по пожароустойчивости к холлофайберу базальтовая и стекловата. Так что холлофайбер, против льняных плит, имеет ряд преимуществ.
 
Последнее редактирование:
Учитывая стоимость материала, который вы хотите применить, можно вместо него применить холлофайбер Акустик 2500. Часть такого материал входит в состав льняных плит, который вы хотите купить. Добавлю, холлофайбер плавится, но при этом не выделяет гари, копоти, едкого дыма, а полиэстеровая основа коксуется. Близки по пожароустойчивости к холлофайберу базальтовая и стекловата. Так что холлофайбер, против льняных плит, имеет ряд преимуществ.
Нашел вот тут: холлофайбер - строй . рф
Такой вопрос, вот у них холлофайбер "акустик" 10см максимальная толщина, а "строй+" 15см.
Все таки если брать, то лучше "акустик" так как там плотность выше, правильно я понимаю? и сделать из двух 10см-вых, одну 15см-вую плиту? Конечно не удобно слегка, было бы проще сразу продавать им 10-15-20 см и т.д. "акустик" так сказать на выбор.
Но вообще я понял вас. Холлофайбер по первому взгляду действительно неплох. Надо будет обдумать.
 
Все таки если брать, то лучше "акустик" так как там плотность выше, правильно я понимаю?

Нет не правильно понимаете. По одной плотности судить не стоит. Нужно исходить из толщины ваших панелей и брать материал, оптимальный для конкретной толщины. Либо брать конкретный материал (смотреть его УСПП, или прикинуть аналог по плотности) и делать определенную толщину, исходя из указанных характеристик.

Можно, конечно, не заморачиваться взять что есть, сделать желаемую толщину. Просто это будет не оптимально. Потому что минвата, стекловата, лен/конопля отличаются и если у одного материала определенное УСПП будет при плотности 30, то у другого такое же УСПП будет при плотности 40.

Дальше будет сообщение, к которому я прикреплю немного адаптированный перевод статьи о поглотителях из разных материалов. Почитайте пожалуйста и считайте, что перевел ее специально для вас)))
 
Дальше будет сообщение, к которому я прикреплю немного адаптированный перевод статьи о поглотителях из разных материалов. Почитайте пожалуйста и считайте, что перевел ее специально для вас)))
Если вы об этом https://www.jochenschulz.me/en/blog/rockwool-glasswool-hemp-best-absorber-material, то его и переводить не надо, если в браузере установлен гугл переводчик.
 
Последнее редактирование:
Здесь будет перевод неплохой статьи, ссылку на которую приводил выше solo541. Для тех, кому лень читать на аглицком языке.
Статья о сравнении панелей из разных материалов: каменная вата, стекловата, конопля, полиэстер. Немного упоминается вспененный меланин и овечья шерсть. Есть графики коэффициента поглощения в зависимости от частоты - при разной толщине панелей и разном отступе от стены.
Формат - .doc
Обязательна к прочтению всем, кто впервые решил делать поглощающие панели)))
Оригинал:
https://www.jochenschulz.me/en/blog/rockwool-glasswool-hemp-best-absorber-material
 

Вложения

  • Like
Реакции: slava13 и Umbrella161
Здесь будет перевод неплохой статьи, ссылку на которую приводил выше solo541. Для тех, кому лень читать на аглицком языке.
Статья о сравнении панелей из разных материалов: каменная вата, стекловата, конопля, полиэстер. Немного упоминается вспененный меланин и овечья шерсть. Есть графики коэффициента поглощения в зависимости от частоты - при разной толщине панелей и разном отступе от стены.
Формат - .doc
Обязательна к прочтению всем, кто впервые решил делать поглощающие панели)))
Оригинал:
https://www.jochenschulz.me/en/blog/rockwool-glasswool-hemp-best-absorber-material
Почитаю обязательно, спасибо
 
Если вы об этом https://www.jochenschulz.me/en/blog/rockwool-glasswool-hemp-best-absorber-material , то его и переводить не надо, если в браузере установлен гугл переводчик.

Ну Гуглом же основную массу и перевел))) Просто в некоторых местах такой кривой перевод, что требует вмешательства. А так читать будет легко и непринужденно.
 
Последнее редактирование:
А с плитами холлофайбера же по идее можно вообще ничего не делать, просто закрепить как-то в вертикальном положении и прикрыть тряпочкой?
 
Не совсем та ссылка, но я уверен что вы поняли о чем я.
Ну Гуглом же основную массу и перевел))) Просто в некоторых местах такой кривой перевод, что требует вмешательства. А так читать будет легко и непринужденно.
Исправил.
 
А с плитами холлофайбера же по идее можно вообще ничего не делать, просто закрепить как-то в вертикальном положении и прикрыть тряпочкой?
Да. Можно на липучку, только придется клеить, одну на холлофайбер, другую на стену.
 
Можно на липучку, только придется клеить, одну на холлофайбер, другую на стену.
Он что настолько легкий?
Просто я вот всё думаю как крепить на стены, не хотелось бы сверлить отверстия конечно.
С липучкой интересный вариант, но вот думаю потом от стены вместе с обоями не сниму ли я липучки эти
И опять же, если на липучках, то как сделать отступ от стены еще 10см. липучки то вплотную к стене сидят
 
Он что настолько легкий?
Просто я вот всё думаю как крепить на стены, не хотелось бы сверлить отверстия конечно.
С липучкой интересный вариант, но вот думаю потом от стены вместе с обоями не сниму ли я липучки эти
1 м2 - 2,5 кг., 1 панель - 0,72 м2, вот и считайте. Вес 1 плиты 1.8 кг. в упаковке 5 плит -100 мм .Но вам надо сделать относ на 5 см, чтобы увеличить эффективность. Думайте как это сделать, но стены сверлить придется и легкую рамку делать надо.
 

Сейчас просматривают